1. Projekte
  2. GE Additive

Headquarter 3D Campus
Innovation in Dimensionen

Auftraggeber
GE Additive
Ort
Lichtenfels
Jahr
2021
Größe
41.100 m²
Status
Realisiert
Auszeichnungen
  • Best Workspaces 2023
  • Iconic Award 2023
  • German Design Award Winner 2024

Die 2000 gegründete Concept Laser GmbH gehört zu den weltweit führenden Anbietern im metallischen 3D-Druck und ist seit 2016 Teil von GE Additive, einer Sparte des globalen Industriekonzerns GE.

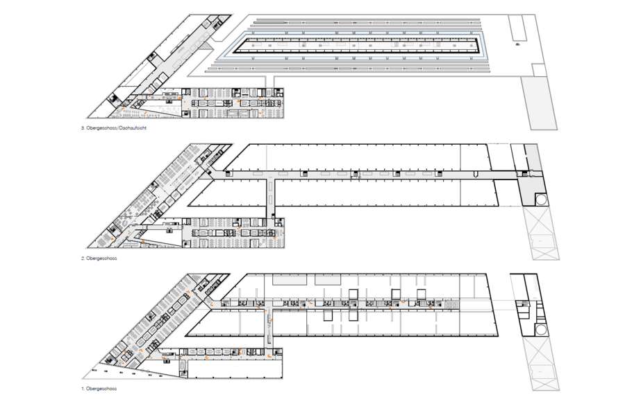
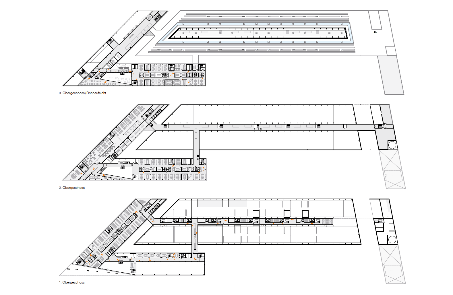
Die Verwaltung umfasst 20.000 m² mit Open-Space-Offices, Auditorium, Restaurant, Laboren und Showroom. Eine Doppelfassade sorgt für Schallschutz und Panoramaausblicke auf den „Gottesgarten“ Oberfrankens.

Das Projekt begann auf einer landwirtschaftlichen Fläche ohne Flächennutzungsplan, geschweige denn einen Bebauungsplan.
Innerhalb kürzester Zeit musste der Entwurf für das 40.000m² Projekt entstehen.
Nach nur 183 Tagen konnte auf der ehemals landwirtschaftlichen Fläche der Spatenstich erfolgen.

Länge aller Bohrpfähle

5.900

Meter

Verbauter Stahl

3.600

Tonnen

Gesamtlänge

421

Meter

“GE Additive is a world leader in metal additive design and manufacturing, a pioneering process that has the power and potential to transform businesses.”
General Electric

Die Herausforderungen waren groß: Das Grundstück lag auf einer landwirtschaftlichen Restfläche zwischen Autobahndreieck und archäologischen Fundstellen und verfügte weder über einen Flächennutzungs- noch einen Bebauungsplan.

In Rekordzeit wurde gemeinsam mit dem Bauherrn ein Bebauungsplanverfahren angestoßen, und innerhalb von nur sechs Monaten war Baurecht geschaffen – im Vergleich zu den üblichen drei Jahren. Während draußen bereits gebaut wurde, liefen die Ausführungsplanungen für die Innenräume noch, sodass der Bauantrag genehmigt war, bevor die Innenräume endgültig entworfen wurden.

GE und Concept Laser investieren rund 100 Mio. Euro in den neuen 3D-Campus in Lichtenfels. Auf etwa 35.000 m² entstehen Forschung, Entwicklung, Produktion, Service und Logistik unter einem Dach – mit Kapazität für rund 700 Arbeitsplätze. Der Spatenstich 2017 markierte einen bedeutenden Schritt für Region und Freistaat Bayern.

Weitere Projekte

Alle Projekte
Goetze KG Armaturen Headquarter Ludwigsburg
GEMÜ Headquarter
Vector Informatik KIT Campus