1. Projekte
  2. GEMÜ

Headquarter
Ein Gebäude als Motor für Kultur, Innovation und Gemeinschaft

Auftraggeber
GEMÜ
Ort
Kupferzell
Jahr
2024
Größe
14.000 m²
Status
Realisiert
Auszeichnungen
  • German Design Award 2025 – Excellent Architecture
  • Iconic Award 2025 - Corporate Architecture
  • Design Center Baden-Württemberg FOCUS Silver 2025
  • BLT Build Awards 2025 - Honorable Mention Architectural Design
  • Best Workspaces 2026 - Auszeichnung Architektur Arbeitswelten
  • iF Design Award 2026 - Architecture, Public Architecture
  • Der Deutsche Lichtdesign-Preis 2026 - Nominierung Innenbeleuchtung / Öffentliche Bereiche

Das GEMÜ Headquarter zeigt den architektonischen Ausdruck des umfassenden Wandels im Unternehmen. Es steht für flexible und agile Arbeitsformen sowie für Transparenz, Innovationskraft und gelebte Nachhaltigkeit. Als zentraler Baustein des achtzehn Hektar großen Masterplans bildet das Atriumhaus die neue Mitte in Kupferzell und dient als internationaler Anlaufpunkt für Kunden, Partner und Besucher. Das Gebäude vereint ökologische Verantwortung mit sozialer Nachhaltigkeit und schafft eine Arbeitswelt, die Gemeinschaft stärkt, Kreativität fördert und Zukunft gestaltet.

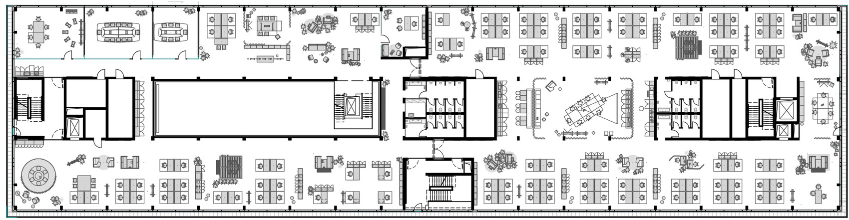
Die Leitidee für das GEMÜ Headquarter war der bewusste Abschied von traditionellen Arbeitsformen. Entstehen sollte ein Ort, der Interaktion und Zusammenarbeit auf allen Ebenen fördert und Raum für Kreativität, Kunst und Kultur bietet. Da Kommunikation auf einer Ebene nicht nachhaltig realisierbar ist, wurde das Atriumhaus entwickelt. Es ermöglicht über einen zentralen Luftraum Sichtkontakt und Austausch über alle Geschosse hinweg. So verbindet das Gebäude Effizienz mit offener Kommunikation und wird zum Symbol des kulturellen Wandels, verstärkt durch die Digitalkunst von Daniel Canogar, die alle Ebenen optisch verbindet.

Die klare Gebäudestruktur ergibt sich aus den funktionalen Anforderungen der Arbeitsbereiche. Das zweispännige Haus mit zentraler Mittelzone ist einhundertzwanzig Meter lang, dreißig Meter breit und fünfundzwanzig Meter hoch. Die Breite erlaubt lichtoptimierte Arbeitsplätze an den Fassaden und flexible Nutzungen im Inneren. Das Atrium und raumhohe Verglasungen bringen viel Tageslicht ins Gebäude. Die präzise ausgeführte Doppelfassade prägt das äußere Bild. Großformatige Scheiben aus Weißglas verleihen den Obergeschossen die Wirkung eines schwebenden Kubus, betont durch eine rote Linie im Sockelbereich. Die Architektur macht die Markenwerte Präzision, Klarheit und Transparenz räumlich sichtbar.

Das GEMÜ Headquarters ist über ein zentrales digitales Steuerungssystem vollständig vernetzt. Alle wesentlichen Parameter wie Temperatur, Luftfeuchtigkeit, Licht, Sonnenschutz und Akustik werden fortlaufend gemessen und automatisch reguliert. Das Gebäude verzichtet bewusst auf zu öffnende Fenster und funktioniert weitgehend autark. Ziel ist maximaler Komfort, hohe Energieeffizienz und bestes Nutzerwohlbefinden. Selbst die Hintergrundmusik passt sich dem Tagesverlauf an. Die intelligente Steuerung schafft ein zukunftsorientiertes Arbeitsumfeld und unterstreicht den technologischen Anspruch des Unternehmens, der sich in der hohen Zufriedenheit der rund dreihundert Mitarbeitenden widerspiegelt.

GEMÜ ist spezialisiert auf Ventil-, Prozess- und Regelungstechnik für industrielle Anwendungen und Weltmarktführer für sterile Prozesse. Insgesamt beschäftigt die Firmengruppe über 2.500 Mitarbeiter weltweit. Das Unternehmen ist in mehr als 50 Ländern mit Tochtergesellschaften und Handelspartnern vertreten.

Das GEMÜ Headquarters versteht sich als sozialer Treffpunkt, der Menschen, Wissen und Ideen zusammenführt. Mitarbeitende, Gäste und Kunden begegnen sich in offenen und inspirierenden Bereichen wie Atrium, Café, Dachloggien oder Park. Nachhaltigkeit wird umfassend gedacht: ökologisch, sozial und kulturell. Das tageslichtoptimierte Atrium reduziert den Bedarf an Kunstlicht, die Doppelfassade sorgt für starken Sonnen, Wärme und Schallschutz. Mehr als zehntausend Quadratmeter Photovoltaikfläche, Wärmepumpen, Kraft Wärme Kopplung und Rückgewinnungssysteme ermöglichen einen nahezu energieautarken Betrieb. Die Architektur ist auf Langlebigkeit und Kreislauffähigkeit ausgelegt und setzt auf CO2 reduzierte Konstruktionen und sortenreine Materialien.

Rendering Lobby

Weitere Projekte

Alle Projekte
GEMÜ Logistik
GEMÜ Reinraumproduktion Schweiz
GEMÜ OTZ